空き家バンク詳細
物件番号 7-017(再) 
UJIターン者優先物件
(~2025年12月17日まで)
(~2025年12月17日まで)
概要
| 種別 | 賃貸・売買 |
|---|---|
| 居住区域 | 山村(山に近い田舎) |
| 地域 | 福栄 |
| 地区 | 紫福 |
| 所在地 | 萩市紫福 |
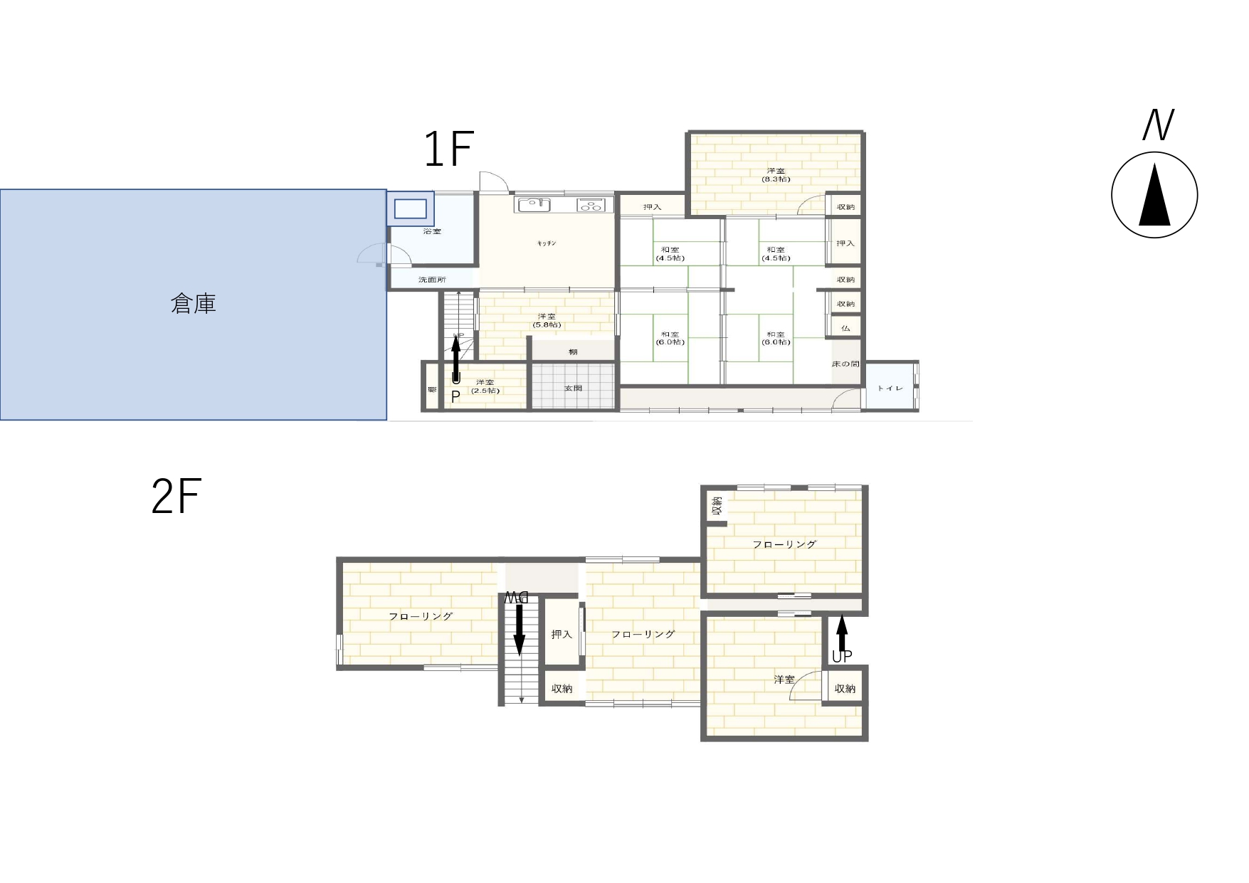
| 間取り | 11DK |
| 売却価格 | 100万円 (応相談) |
| 賃料/月額 | 2万5千円 |
| 敷金(賃貸) | 5万円 |
| 情報登録日 | 2025-09-18 |
詳細
| 建物構造 | 木造かわらぶき2階建 | 電気 | あり |
|---|---|---|---|
| 建築年 | 昭和42年 | 水道 | 公共水道 |
| 土地面積 | 564.08(㎡) 170.63(坪) | 生活排水 | 下水道 |
| 延床面積 | 264.63(㎡) 80.05(坪) | 給湯 | プロパンガス |
| 付帯物件 | 倉庫 | 風呂 | プロパンガス |
| ハザード | 該当 | トイレ | 水洗(洋式) |
| 伝建地区 | 非該当 | ペットの飼育 | 可能(室内及び室外) |
| 駐車場 | あり 2台 | 状態 | 緑豊かな田園風景の中にある物件です。 令和元年に一部リフォーム済です。 表面的な修繕が必要です。 |
| 小学校 | 福栄小学校 | ||
| 中学校 | 福栄中学校 | ||
| 交通機関 | 防長バス 永田沖バス停より徒歩5分 | ||
| 買い物 | 最寄りのスーパーまで車で18分(14㎞) | ||
| その他 | 福栄小・中学校まで車で7分(4.9㎞)※スクールバスがあります。 福栄総合事務所、道の駅ハピネスふくえまで車で7分(5.4㎞) 紫福郵便局まで車で5分(2.2㎞) 萩市役所まで車で22分(15.4㎞) | ||
| 問い合わせ先 | はぎポルト‐暮らしの案内所‐ 萩市大字江向602番地 0838-25-3819 ijyu-sien@city.hagi.lg.jp | ||
間取り図
※もう一度クリック or タップで閉じます







